Immobilier Côté Sud Agence
Télécharger la fiche
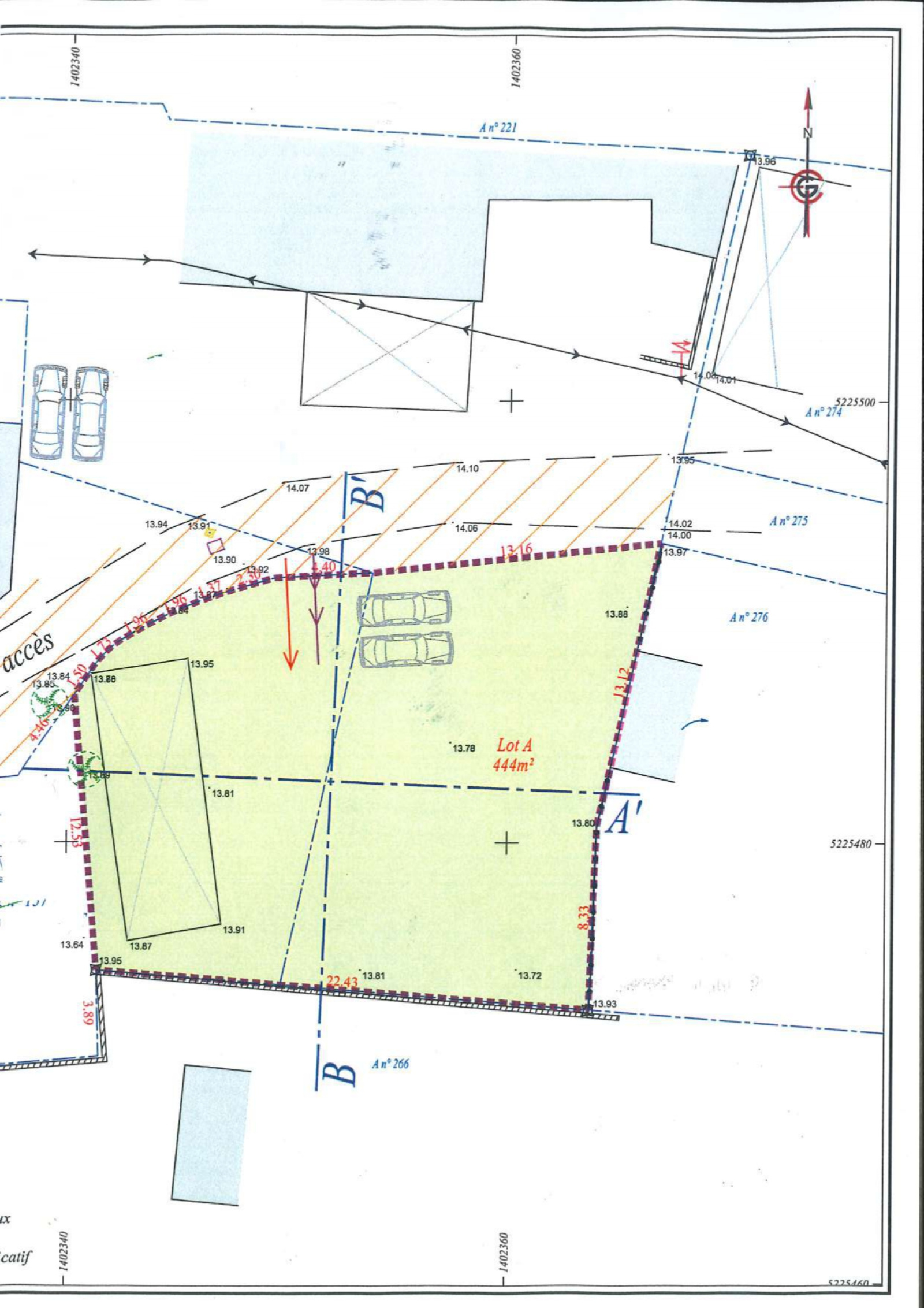
Exclusivité

Terrain 444 m² 444 m²

Bouhet (17540)
60 500 € Référence 2087

A propos de ce bien

EN EXCLUSIVITE, Terrain à batir de 444 m² hors lotissement, non viabilisé. Environnement calme.

Emprise au sol 80 %.

Caractéristiques de ce bien

  • terrain 444 m²

Diagnostics énergétiques

Consommation énergétique
A B C D E F G
Emission de gaz à effet de serre
A B C D E F G
DPE ANCIENNE VERSION

Informations financières

Prix de vente honoraires TTC inclus 60 500 €
Prix de vente honoraires TTC exclus 55 000 €
Honoraires TTC à la charge acquéreur 10 %

Calcul des mensualités

* Champs obligatoires